• Galego
  • Castellano
  • Portugués
Logo del Arquivo Dixital de Galicia
  • Inicio
    • Quem somos
    • Colaboradores
    • Fondos europeos
  • Consulta
    • Búsqueda asistida
    • Listado de fondos
    • Produtores
    • Materias
    • Lugares
  • Archivos
  • Destacados
  • Usuarios
    • Participa
    • Contacto
    • Ayuda
    • FAQ's
    Está em: › Plano da planta xeral do mosteiro de Santa María de...
     
    • Detalle

      Título

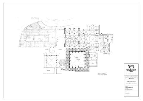
      Mapas Plano da planta xeral do mosteiro de Santa María de Montederramo.

      Grupos

      • Copia digital
      • Copia digital

      Acciones

      • Descargar grupo
      • Derechos de autor
    1. - 1. -
     
    • Logo de OAI-PMH
    • Logo de Linked Open Data
    • Logo de Europeana Data Model
    • 
    Junta de Galiza

    Xunta de Galicia. Información mantenida y publicada en internet por la Xunta de Galicia

    Atención a la ciudadanía - Acessibilidade - Aviso legal - Mapa do portal